NƠI CHIA SẺ KIẾN THỨC VÀ HỌC DỰ TOÁN HIỆU QUẢ!
[tintuc]
Thông tin công trình
- Tên công trình: Biệt Thự Song Lập
- Địa chỉ: Vĩnh Yên - Vĩnh Phúc
- Đơn vị lập dự toán: Công ty TNHH Tư Vấn và Đào Tạo DTC (Câu Lạc Bộ Dự Toán)
- Thời hạn thực hiện công việc đo bóc dự toán: 5 ngày kể từ ngày 24/5/2016
- Nội dung công việc: Đo bóc khối lượng và lập dự toán xây dựng công trình theo thiết kế được duyệt sử dụng đơn giá mới nhất tại địa phương.
Mặt bằng tổng thể khu biệt thự gồm 6 cái song lập
Mặt bên của nhà
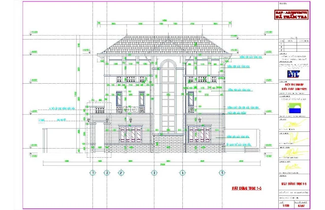
Mặt trước của nhà
Mặt sau của nhà
------
CLB Dự toán là đơn vị chuyên nghiệp trong công tác đo bóc khối lượng và lập dự toán công trình xây dựng. Trong thời gian vừa qua nhận được rất nhiều sự quan tâm hợp tác của các công ty, cá nhân có nhu cầu này trên cả nước. Với đội ngũ Kỹ sư - Giảng viên dày dạng kinh nghiệm thực tế và phương châm "Chính xác - Nhanh chóng - Chi phí thấp nhất" đã dần khẳng định được thương hiệu trong lòng nhiều đối tác.
TRÂN TRỌNG KÍNH MỜI SỰ QUAN TÂM HỢP TÁC VỚI CÁC CÔNG TY CÓ NHU CẦU ĐO BÓC KHỐI LƯỢNG VÀ LÀM DỰ TOÁN XÂY DỰNG CÔNG TRÌNH NHÀ NƯỚC.
Liên hệ: 0913.009.112 (Mr. Nhẫn)
Hoặc gửi HS vào email dutoandtc@gmail.com để được báo giá
[/tintuc]



